GraysonParker
Sign Up Login
Refine Search

1112 Sage Drive, Unit 7, Griffin, GA 30224

$499,500
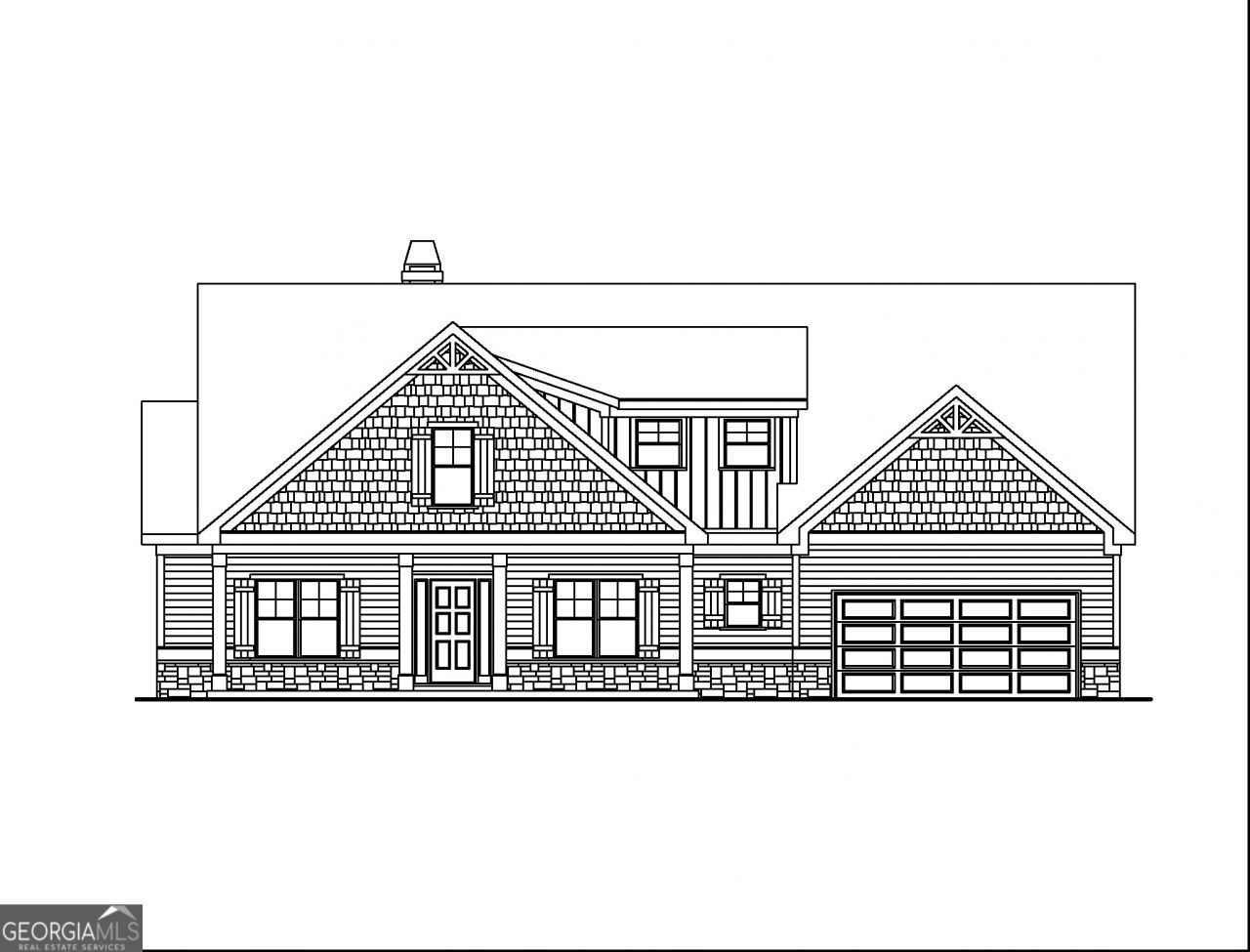
  • 1112 Sage Drive, Unit 7, Griffin, GA 30224 Main Photo

1 Total Photos [Click to View All]

Active
BEDS4 BATHS3 full SQUARE FEET2,807 MLS#10710826
STATUSActive PROPERTY TYPEResidential - Single Family SUBDIVISIONThe Meadows

Property Description

Bellinger B - This is a 4 bedroom 3 full bath home with an open concept oversized kitchen and Owners suite on the main level that is very private & secluded from the rest of home. Also on the main level are 2 additional bedrooms, another bathroom and dining room. The upper floor also hosts an additional bedroom and bathroom. Under Construction. ALL ELECTRIC COMMUNITY. BUILDER IS OFFERING $23,000.00 SELLER INCENTIVE that can be used towards closing cost or use to reduced sales price also $2000.00 lender incentive with preferred lenders on contracts . PCD is 4/30/26 To HONOR INCENTIVES home needs to close with 45 days of executed contracr

1112 Sage Drive, Unit 7 | MLS# 10710826

This single family home located at 1112 Sage Drive, Unit 7, Griffin, GA 30224 is currently listed for sale with an asking price of $499,500. This property was built in 2023 and has 4 bedrooms and 3 full baths with 2807 sq. ft. Sage Drive, Unit 7 is located in the The Meadows subdivision. Search The Meadows real estate on gparker.jybrealty.com today.

Property Features

Property Type: Residential - Single Family
Basement: None
Cooling: Ceiling Fan(s), Central Air, Electric, Zoned
Fireplaces: 1
Garage: 2 car attached
Heating: Central, Dual, Electric, Zoned
Home Style: Craftsman
Lot Size: 0.57 Acres
Roof Type: Composition
Stories: 2.0
Taxes: $0
Year Built: 2023

Feature Descriptions

Additional Rooms: Family Room
Amenities: Clubhouse, Pool, Tennis Court(s)
Appliances: Cooktop, Dishwasher, Electric Water Heater, Ice Maker, Microwave, Oven, Stainless Steel Appliance(s)
Days on Site: 33
Dining Room: Separate Room
Exterior: Concrete
Flooring: Carpet, Other, Tile, Vinyl
Foundation: Slab
Interior: Double Vanity, High Ceilings, Master On Main Level, Other, Separate Shower, Split Bedroom Plan, Walk-In Closet(s)
Kitchen: Breakfast Area, Pantry, Solid Surface Counters
Parking Notes: Garage, Attached, Garage Door Opener
Security: yes
Security Features: Security System
Sewer: Public Sewer
Structures: Tennis Court(s)
Swimming Pool: Yes
Topography: Level
Utilities: Cable Available, Sewer Connected, Underground Utilities
Water: Public
Window Features: Double Pane Windows

Local Schools

High School: Spalding
Middle School: Rehoboth Road
Elementary School: Crescent Road

Listed By / Shown By

Listed By

Agency Name: Lindsey Marketing Group
Agency Phone: 770-599-8700

Shown By

Agent Name: Grayson Parker
Agent Phone: (678) 850-1955
Agency Title: Josey Young & Brady Realty, LLC

IDX logo

Estimate Your Payment

Estimated Payment

$ 1,257.36 per month $1,111.67 Principal & Interest $0.00 Property Tax (data not provided by mls) $145.69 Homeowner's Insurance

Change Payment Information

%
years/fixed
yearly
yearly (est.)
(Payments are an estimate and may vary by lender)
Disclaimer: All information deemed reliable but not guaranteed. All properties are subject to prior sale, change or withdrawal. Neither listing broker(s) or information provider(s) shall be responsible for any typographical errors, misinformation, misprints and shall be held totally harmless. Listing(s) information is provided for consumers personal, non-commercial use and may not be used for any purpose other than to identify prospective properties consumers may be interested in purchasing. Information on this site was last updated 04/18/2026. The listing information on this page last changed on 04/18/2026. The data relating to real estate for sale on this website comes in part from the Internet Data Exchange program of Delta Media Group MLS (last updated Sat 04/18/2026 9:43:02 AM EST) or GAMLS (last updated Sat 04/18/2026 9:35:17 AM EST). Real estate listings held by brokerage firms other than Josey Young & Brady Realty, LLC may be marked with the Internet Data Exchange logo and detailed information about those properties will include the name of the listing broker(s) when required by the MLS. All rights reserved.
Privacy Policy / DMCA Notice / ADA Accessibility

Login to My Homefinder

Pixel